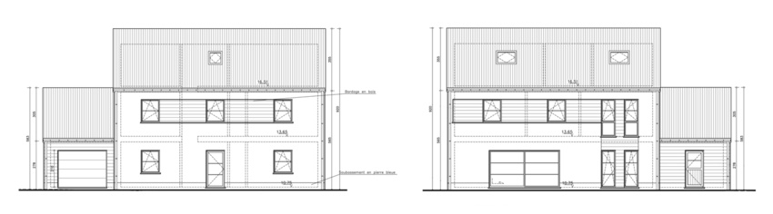
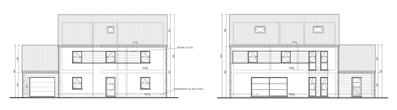
D’une superficie totale de 279m², cette villa comprend un salon, une sàm, une cuisine, une buanderie, un bureau, 3 à 5 chambres dont une suite parentale avec sdd et dressing, une sdb, 2 wc séparés et un garage.
Le permis étant octroyé, le gabarit de construction et son style architectural ne pourront être modifiés, vous restez
cependant libre de l’aménagement intérieur et du choix des matériaux de finition.
Ce très beau projet « clé sur porte » vous est proposé pour 400.900,00€ terrain et construction hors frais.
Un dossier complet peut vous être envoyé sur simple demande.
Noël Doyen - 0477 67 75 10 - doyennoel@gmail.com


Accueil
Cliquez ici pour partager l'article




